Sold

2124 N Lakewood Avenue, Chicago, IL 60614

2124 N Lakewood Avenue

$865,000
Listed by Emily Sachs Wong with @properties Christie's International Real Estate 312-286-0800
3 beds
2 full baths
1 half bath
1,785 Sq.Ft.
1988 BUILT
$865,000

2124 N Lakewood Avenue

3 Beds 3 Baths 1,785 Sq.Ft.

Description

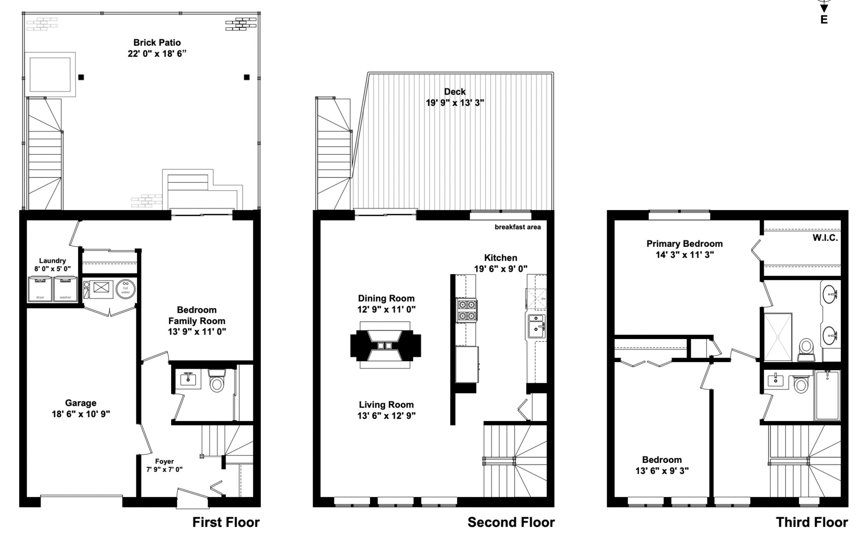
Nestled on a charming tree-lined street in the highly sought-after Oscar Mayer school district, this thoughtfully maintained fee simple townhouse blends timeless design with modern upgrades. Designed by Booth Hansen, the home offers bright, inviting living spaces across three levels. The main level features rich hardwood floors, a dual-sided gas fireplace, and an open layout that connects living and dining areas. The eat-in kitchen has been updated with some new high-end appliances, custom cabinetry, granite countertops, and a tasteful backsplash, flowing seamlessly to an outdoor deck which is perfect for entertaining, grilling, or enjoying peaceful evenings outdoors. Upstairs, the primary suite offers a spacious walk-in closet and a spa-like bathroom with a glass-enclosed walk-in shower and refined finishes. A second bedroom enjoys serene tree-lined views, accompanied by a beautifully renovated bathroom with fresh grout work. The lower level offers a flexible space ideal for an office, guest room, or den, along with a powder room (plumbed for a conversion to a full bath). This level opens to a paved, covered outdoor area designed for year-round enjoyment. Additional upgrades include fresh paint and trim throughout, a new washer, updated electrical work, and a refreshed deck with new stairs. Located just steps from Oscar Mayer Elementary, the 606, Armitage EL, and the Clybourn Metra, the home offers unparalleled access to neighborhood favorites including Trader Joe's, Whole Foods, Pequod's Pizza, and a vibrant selection of local shops and restaurants.

Share Property

Location

2124 N Lakewood Avenue, Chicago, IL 60614

Status

Sold

Area & Lot

Status
Sold
Living Space
1,785 Sq.Ft.
MLS® ID
12489560
Type
Townhouse
Year Built
1988
School District
299

Interior

Bedrooms
3
Total Bathrooms
3
Full Bathrooms
2
Half Bathroom
1
Appliances
Humidifier

Exterior

Stories
3
Garage Space
1.0
Water Source
Lake Michigan
Parking
Concrete, Garage Door Opener, Yes, Garage Owned, Attached, Driveway, Owned, Garage
Heat Type
Natural Gas
Air Conditioning
Central Air
Sewer
Public Sewer

Financial

Sales Price
$865,000
Real Estate Tax
$13,648/yr

Property Images

""

Work With Us

Dedicated to you. Contact us today to start your home searching journey!